Fertighotel Portfolio

Konzeptstudie in Graz

Lageplan

Bestehende Infrastruktur wird erweitert

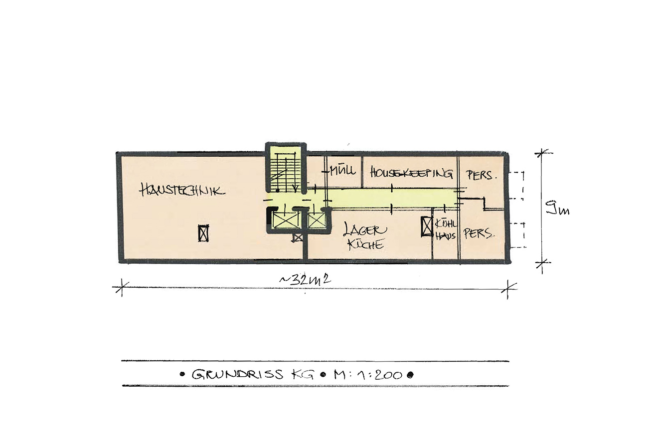
In der Nähe von Graz ist die Weiterentwicklung eines Gewerbestandorts geplant. In dem bestehenden Haus befindet sich derzeit ein Tankstelle sowie Lebensmittelverkauf.

Mit der zusätzlichen Errichtung von Zimmern soll ein Synergieeffekt geschaffen werden der auch der Nachfrage in der Region gerecht wird.